Top


LOADING

1175 Saint-Sosime Road Adamsville, New Brunswick E4T 3V9

4 Bedroom 1 Bathroom 1198 sqft
Baseboard Heaters Acreage

$189,900

74.99 ACRES // WATER BROOK Welcome to 1175 Saint-Sosime Roadwhere space, nature, and opportunity meet. This charming property offers something for everyone. The main level features an enclosed porch/mudroom that opens into a spacious kitchen and dining area. The L-shaped kitchen provides ample cabinet space and easy access to the inviting living roomperfect for hosting family and friends. Also on the main floor are three comfortable bedrooms and a full bathroom. Upstairs, youll find a fourth bedroom along with a versatile loft space, ideal for use as a second living room, cozy reading nook, or additional sleeping area. Set on nearly 75 acres of land, this is an ideal setting for starting a hobby farm, exploring the outdoors, or simply enjoying peace and privacy. With vast open space at your fingertips, you can hunt, hike, ATV, or snowmobileall without ever leaving your property. The lot also features its very own water stream/brook, offering the potential for fishing right in your backyard. Nestled in the countryside, the property provides a tranquil atmosphere while still being conveniently located near nearby villages with access to restaurants, grocery stores, pharmacies, clinics, schools, and more. The area also connects to local ATV and snowmobile trails. Located just 35 minutes from Moncton, you'll enjoy quick access to the city and major retailers like Costco. Call, text, or email for more information! (id:32432)

Property Details

MLS® Number NB131591
Property Type Single Family
Equipment Type None
Features Treed
Rental Equipment Type None

Building

Bathroom Total 1
Bedrooms Above Ground 4
Bedrooms Total 4
Basement Type Crawl Space
Exterior Finish Vinyl
Fireplace Present No
Flooring Type Vinyl
Foundation Type Concrete
Heating Fuel Electric
Heating Type Baseboard Heaters
Stories Total 2
Size Interior 1198 Sqft
Total Finished Area 1198 Sqft
Type House
Utility Water Well

Land

Access Type Year-round Access, Public Road
Acreage Yes
Sewer Septic System
Size Irregular 74.99
Size Total 74.99 Ac
Size Total Text 74.99 Ac

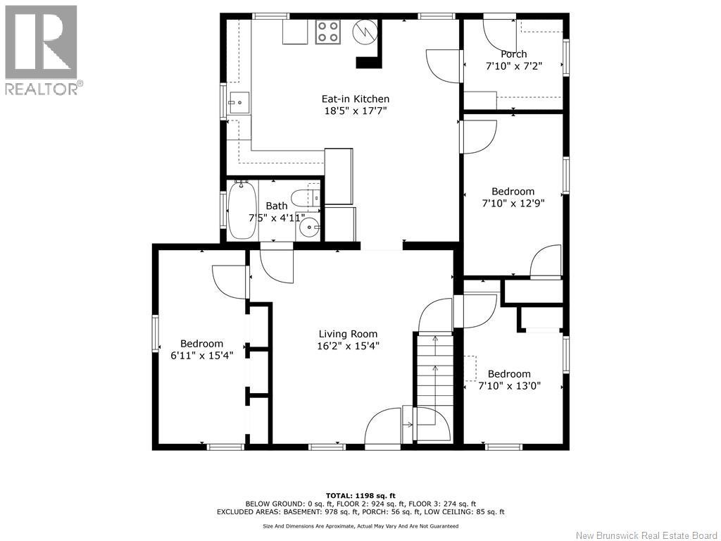
Rooms

Level Type Dimensions
Second Level Loft 11'5'' x 12'3''
Second Level Bedroom 11'7'' x 12'0''
Main Level Living Room 16'2'' x 15'4''
Main Level 3pc Bathroom 7'5'' x 4'11''
Main Level Bedroom 7'10'' x 13'0''
Main Level Bedroom 6'11'' x 15'4''
Main Level Bedroom 7'10'' x 12'9''
Main Level Kitchen 18'5'' x 17'7''
Main Level Enclosed Porch 7'10'' x 7'2''

https://www.realtor.ca/real-estate/29215480/1175-saint-sosime-road-adamsville

Interested?

Contact us for more information


Generating Captcha

Jeremie Fontaine
Salesperson

(506) 521-0878

Exit Realty Associates
260 Champlain St
Dieppe, New Brunswick E1A 1P3

(506) 382-3948
(506) 382-3946
www.exitmoncton.ca/
https://www.facebook.com/ExitMoncton/

Your Favourites

 

No Favourites Found