Top


LOADING

4117 Main Street Belledune, New Brunswick E8G 2K8

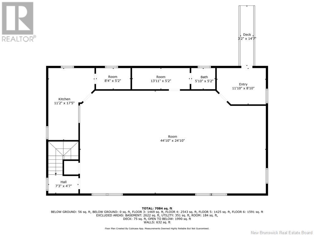
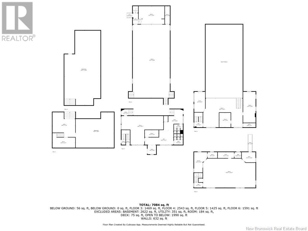
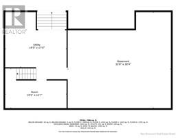
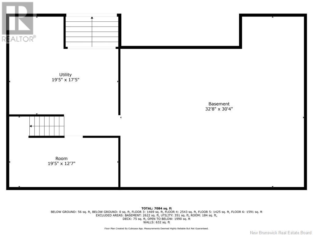
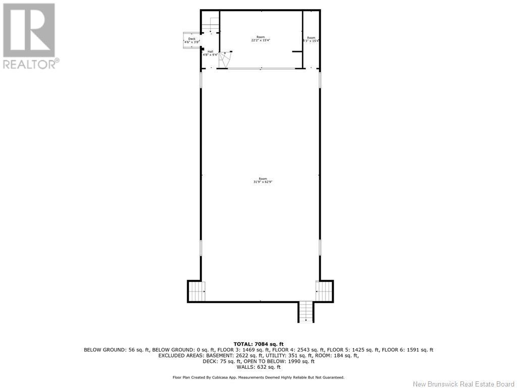
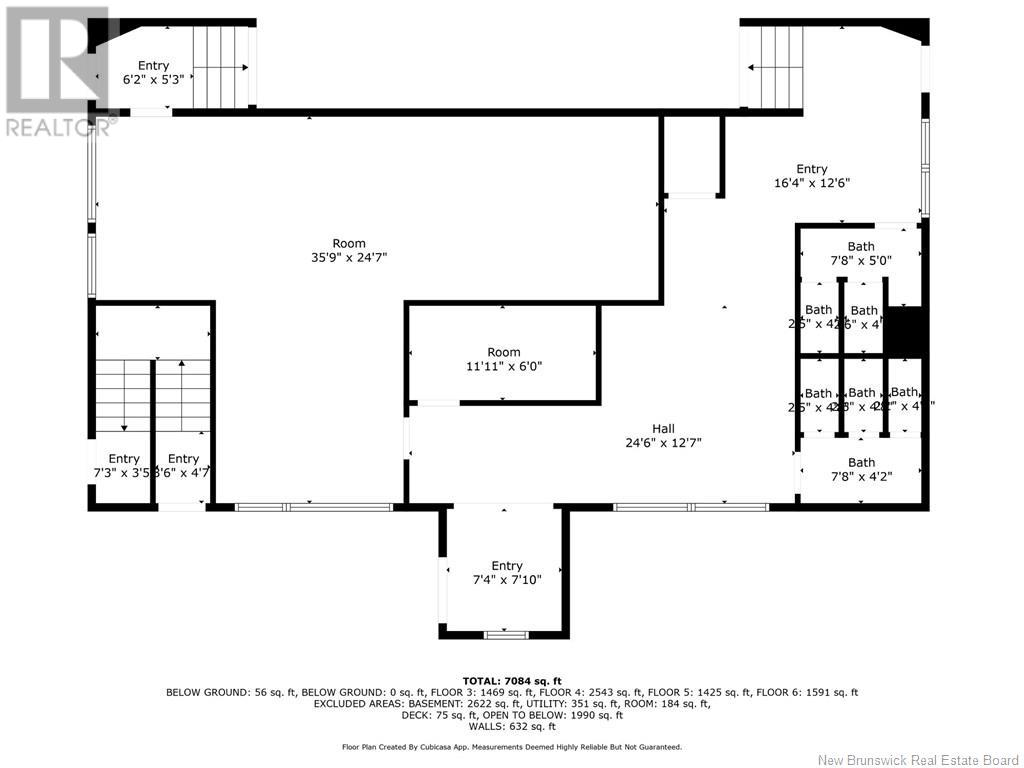
7084 sqft
Forced Air Landscaped

$115,000

This Building Parish Hall located on Main Street in Belledune could make a great project for investors. Over 7000 sq. ft. living space, 4 storeys, used to be a movie theatre, there is also a kitchen, man and woman bathrooms, also attached on the building is also the old funeral parlor for the village. Oil heat the furnace, oil tank was replaced 7 yrs. ago and some wiring on the breaker panel as well. Hot water tank 2017, the Septic Field was also done approx. in the same time. The building could be transformed into apartments which are always on demand. (id:32432)

Property Details

MLS® Number NB120360
Property Type Other
Equipment Type None
Features Level Lot, Other
Rental Equipment Type None
Structure None

Building

Exterior Finish Other, Stucco
Fire Protection None
Fireplace Present No
Heating Fuel Oil
Heating Type Forced Air
Size Interior 7084 Sqft
Total Finished Area 7084 Sqft

Land

Access Type Year-round Access, Highway Access, Public Road
Acreage No
Landscape Features Landscaped
Size Irregular 2836
Size Total 2836 M2
Size Total Text 2836 M2

https://www.realtor.ca/real-estate/28439076/4117-main-street-belledune

Interested?

Contact us for more information


Generating Captcha

Ginette Bujold
Salesperson

(506) 987-2345
(506) 759-9094

RE/MAX Prestige Realty
205 Roseberry Street
Campbellton, New Brunswick E3N 2H4

(506) 759-9080
(506) 759-9094
www.remax-prestigerealty.com/

Your Favourites

 

No Favourites Found