Top


LOADING

3787 Main Belledune, New Brunswick E8G 2K2

1600 sqft
Baseboard Heaters

$46,300

**Bungalow with great potential in Belledune** This property is the perfect blank slate for your dream home. With the interior ready for a fresh start, its a rare opportunity to bring your own vision to life from the ground up. Whether you're an investor or a homeowner with big ideas, this is a chance to create something truly unique. A Solid structure, Tons of square footage, Tons of potential. Allow 48 hrs for all offers. Call your favorite REALTOR® today to book a visit (id:32432)

Property Details

MLS® Number NB125568
Property Type Single Family

Building

Basement Type None
Exterior Finish Vinyl
Fireplace Present No
Heating Fuel Electric
Heating Type Baseboard Heaters
Size Interior 1600 Sqft
Total Finished Area 1600 Sqft
Type House
Utility Water Well

Land

Access Type Year-round Access
Acreage No
Sewer Septic System
Size Irregular 1452
Size Total 1452 M2
Size Total Text 1452 M2

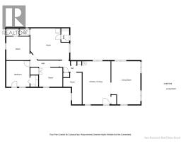
Rooms

Level Type Dimensions
Main Level 2pc Bathroom 6'0'' x 4'0''
Main Level Other 18'6'' x 15'6''
Main Level Other 11'0'' x 11'0''
Main Level Other 13'0'' x 11'0''
Main Level Other 12'0'' x 9'0''
Main Level Bath (# Pieces 1-6) 15'0'' x 4'6''
Main Level Kitchen/dining Room 21'4'' x 14'0''
Main Level Family Room 21'4'' x 13'10''

https://www.realtor.ca/real-estate/28780495/3787-main-belledune

Interested?

Contact us for more information


Generating Captcha

Kim Garvie
Salesperson

(506) 787-0586
https://kimgarvie.royallepage.ca/
https://m.facebook.com/kimgarviedecor/
https://www.instagram.com/kimgarviedecor/?fbclid=IwAR0G14PPSfP44ObpEFNRbGjpjMuLNp7q3KAsXJAJxFxIC6KExd-wZm6b0Zw

Royal LePage Parkwood Realty
1370 Johnson Ave
Bathurst, New Brunswick E2A 3T7

(506) 546-0660

Your Favourites

 

No Favourites Found