Top


LOADING

3711 Main Street Belledune, New Brunswick E8G 1Z7

2832 sqft
Heat Pump Forced Air, Heat Pump Acreage

$299,900

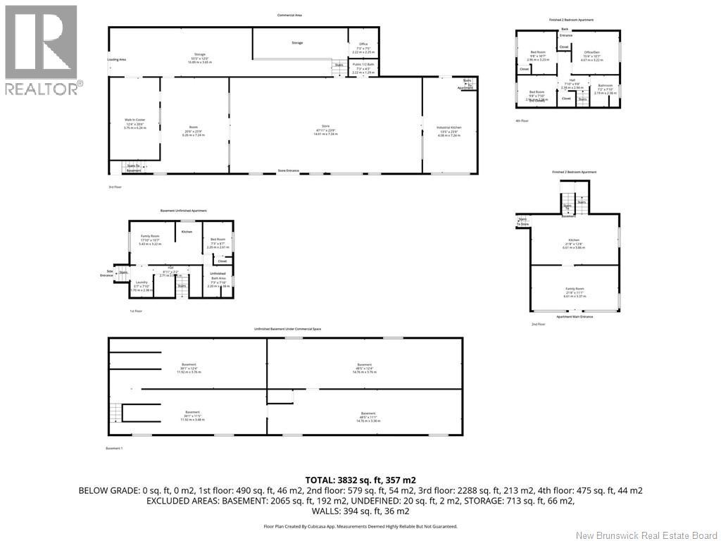
Residential & Commercial Investment Opportunity! This versatile mixed-use property sits on an approx. 1.26-acre high-visibility corner lot, offering great potential for investors and entrepreneurs. The residential section features a 2-bedroom apartment, plus a partially finished basement with its own entrance ideal for creating a future 1-bedroom unit with some finishing work and plumbing to septic. The commercial side includes a commercial kitchen, open area, large walk-in cooler, office, 1/2 bathroom, side loading dock, and plenty of storage, perfect for food service, retail, or a wide range of business uses. With high exposure, ample parking, and flexible space, this residential and commercial property offers endless possibilities. HST is Not included in the purchase price. With your personal touch this property has the potential to bring your investment vision to life. (id:32432)

Business

Business Type Restaurant, Retail and Wholesale
Business Sub Type Restaurant, General retail

Property Details

MLS® Number NB131009
Property Type Other
Features Corner Site, Visual Exposure
Structure Shed

Building

Constructed Date 1975
Cooling Type Heat Pump
Exterior Finish Hardboard, Other, Vinyl
Fire Protection Monitored Alarm, Security System
Fireplace Present No
Heating Fuel Electric, Oil
Heating Type Forced Air, Heat Pump
Size Interior 2832 Sqft
Total Finished Area 2832 Sqft

Land

Acreage Yes
Size Irregular 5105
Size Total 5105 M2
Size Total Text 5105 M2

https://www.realtor.ca/real-estate/29161596/3711-main-street-belledune

Interested?

Contact us for more information


Generating Captcha

Eileen Fairbairn
Salesperson

(506) 759-5405

RE/MAX Prestige Realty
205 Roseberry Street
Campbellton, New Brunswick E3N 2H4

(506) 759-9080
(506) 759-9094
www.remax-prestigerealty.com/

Your Favourites

 

No Favourites Found