Top


LOADING

299 Bd St Pierre E Boulevard Caraquet, New Brunswick E1W 1B5

5 Bedroom 1 Bathroom 1427 sqft
Air Conditioned, Heat Pump Baseboard Heaters, Heat Pump Landscaped

$179,000

When Viewing This Property On Realtor.ca Please Click On The Multimedia or Virtual Tour Link For More Property Info. Warm family home with recent renovations: kitchen, bathroom, and floor redone (8 years), roof (4 years), insulated attic and 3 heat pumps (6 months). Ground floor: large bedroom, kitchen/dining room open to the living room, bathroom with laundry room. Upstairs: 4 bedrooms with potential for conversion into a loft or AirB&B style accommodation. Large backyard with partial sea view. Located in Caraquet, capital of Acadia, a dynamic coastal city with schools, services and culture. (id:32432)

Property Details

MLS® Number NB117115
Property Type Single Family
Features Balcony/deck/patio
Structure Shed
View Type Ocean View

Building

Bathroom Total 1
Bedrooms Above Ground 5
Bedrooms Total 5
Cooling Type Air Conditioned, Heat Pump
Exterior Finish Vinyl
Fireplace Present No
Flooring Type Laminate, Vinyl
Foundation Type Concrete
Heating Fuel Electric
Heating Type Baseboard Heaters, Heat Pump
Stories Total 2
Size Interior 1427 Sqft
Total Finished Area 1427 Sqft
Type House
Utility Water Municipal Water

Land

Access Type Year-round Access, Public Road
Acreage No
Landscape Features Landscaped
Sewer Municipal Sewage System
Size Irregular 0.4
Size Total 0.4 Ac
Size Total Text 0.4 Ac
Zoning Description Res

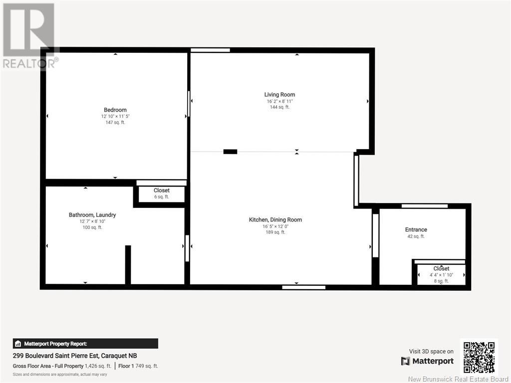
Rooms

Level Type Dimensions
Second Level Bedroom 10'1'' x 9'0''
Second Level Bedroom 12'5'' x 8'8''
Second Level Bedroom 10'2'' x 9'2''
Second Level Bedroom 12'2'' x 9'2''
Main Level Foyer 7'1'' x 6'11''
Main Level 3pc Bathroom 12'7'' x 8'10''
Main Level Bedroom 12'1'' x 11'5''
Main Level Kitchen 16'5'' x 12'0''
Main Level Living Room 16'2'' x 8'11''

https://www.realtor.ca/real-estate/28225052/299-bd-st-pierre-e-boulevard-caraquet

Interested?

Contact us for more information


Generating Captcha

Eric Normandeau
Salesperson

(506) 720-1255

Pg Direct Realty Ltd.
607 St. George Street, Unit B02
Moncton, New Brunswick E1E 2C2

(877) 709-0027

Your Favourites

 

No Favourites Found