**Private Oasis** WATERFRONT!! This architecturally custom designed 2300 sqft waterfront home has detached 3-bay garage on 3.7 acres in a private area, only 10 mins from Dalhousie & 45 mins to Bathurst. Be prepared to have your breath taken away the second you enter onto this property. The quick & peaceful drive through ""Mother Nature"" & ending up at the ocean is a picture-perfect place to call home. Open concept kitchen (laundry in pantry), dining & family area has clerestory windows that flood the home with natural light & the magnificent view of the Bay of Chaleur, Heron Island & Mountains. All day long you will feel like youre on vacation at your own private retreat. The main floor also has a ½ bath, primary bedroom with walk-in closet ensuite bath & patio doors to the wraparound deck. On the 2nd floor, you will find an open loft area great for an office or to sit with your favourite book, storage area & 2 bedrooms with a connecting full bathroom. The open concept full basement has a roll-up door facing ocean & a blank canvas waiting for you to create more living space. This 4-season executive home has space for everyone along with storage for outdoor equipment in shed off front deck (roll-up door) and vehicles/ATV's in the detached 3-bay garage with man door to exterior. All items with exception of personal belongings are negotiable. Spend your time relaxing in the water or in the 3-bay garage, this Executive Home has it all! Dont miss out, call today & book a visit! (id:32432)
| MLS® Number | NB120323 |
| Property Type | Single Family |
| Equipment Type | Water Heater |
| Features | Treed, Softwood Bush, Balcony/deck/patio |
| Rental Equipment Type | Water Heater |
| Structure | Shed |
| View Type | Ocean View |
| Water Front Name | Bay Of Chaleur |
| Water Front Type | Waterfront On Ocean |
| Bathroom Total | 3 |
| Bedrooms Above Ground | 3 |
| Bedrooms Total | 3 |
| Basement Development | Unfinished |
| Basement Features | Walk Out |
| Basement Type | Full (unfinished) |
| Constructed Date | 2005 |
| Cooling Type | Heat Pump |
| Exterior Finish | Wood |
| Fireplace Present | No |
| Foundation Type | Concrete |
| Half Bath Total | 1 |
| Heating Fuel | Electric |
| Heating Type | Baseboard Heaters |
| Stories Total | 2 |
| Size Interior | 2300 Sqft |
| Total Finished Area | 2300 Sqft |
| Type | House |
| Utility Water | Drilled Well, Well |
| Detached Garage | |
| Garage |
| Access Type | Year-round Access, Public Road |
| Acreage | Yes |
| Sewer | Septic System |
| Size Irregular | 3.7 |
| Size Total | 3.7 Ac |
| Size Total Text | 3.7 Ac |
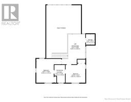
| Level | Type | Length | Width | Dimensions |
|---|---|---|---|---|
| Second Level | Bath (# Pieces 1-6) | 6'11'' x 11'8'' | ||
| Second Level | Bedroom | 16'3'' x 15'8'' | ||
| Second Level | Bedroom | 12'10'' x 12'7'' | ||
| Second Level | Loft | 15'3'' x 19'8'' | ||
| Basement | Storage | 32'9'' x 49'3'' | ||
| Main Level | Other | 12'9'' x 7'11'' | ||
| Main Level | Ensuite | 7'2'' x 8'9'' | ||
| Main Level | Primary Bedroom | 24'5'' x 15'8'' | ||
| Main Level | 2pc Bathroom | 4'11'' x 4'3'' | ||
| Main Level | Laundry Room | 10'7'' x 7'8'' | ||
| Main Level | Foyer | 10'7'' x 6'10'' | ||
| Main Level | Family Room | 21'0'' x 17'9'' | ||
| Main Level | Dining Room | 16'0'' x 16'10'' | ||
| Main Level | Kitchen | 15'7'' x 16'10'' |
https://www.realtor.ca/real-estate/28439898/25-island-view-lane-sea-side
Contact us for more information
Eileen Fairbairn
Salesperson
(506) 759-9080
(506) 759-9094
www.remax-prestigerealty.com/