Top


LOADING

230 Birchgrove Road Beresford, New Brunswick E8K 1G7

2 Bedroom 1 Bathroom 719 sqft
Baseboard Heaters

$124,900

Discover affordable, low-maintenance living in this spotless and bright 2-bedroom mobile home located in the low-fee, Birchgrove park. From the moment you step inside, youll appreciate the fresh updates, including new flooring throughout and recently replaced windowsbringing in plenty of natural light and peace of mind for years to come. The layout offers comfortable, functional living with a clean, inviting kitchen, cozy living area, and two well-sized bedrooms. Outside, enjoy a good-sized backyard with a storage shedperfect for seasonal tools, hobbies, or extra storage. Whether you're downsizing, purchasing your first home, or looking to keep expenses low, this move-in-ready property is an excellent opportunity. Nothing left to do but unpack and enjoy. (id:32432)

Property Details

MLS® Number NB130512
Property Type Single Family
Structure Shed

Building

Bathroom Total 1
Bedrooms Above Ground 2
Bedrooms Total 2
Basement Type None
Exterior Finish Vinyl
Fireplace Present No
Flooring Type Vinyl
Foundation Type None
Heating Type Baseboard Heaters
Size Interior 719 Sqft
Total Finished Area 719 Sqft
Type House
Utility Water Municipal Water

Land

Acreage No
Sewer Municipal Sewage System

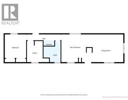
Rooms

Level Type Dimensions
Main Level Bedroom 10'0'' x 11'1''
Main Level Bedroom 7'5'' x 9'10''
Main Level Laundry Room 5'1'' x 2'7''
Main Level Bath (# Pieces 1-6) 8'0'' x 9'10''
Main Level Kitchen 14'8'' x 13'0''
Main Level Living Room 19'5'' x 13'0''

https://www.realtor.ca/real-estate/29130892/230-birchgrove-road-beresford

Interested?

Contact us for more information


Generating Captcha

Marshall Legacy
Salesperson

(506) 543-6084
https://www.facebook.com/profile.php?id=61565651262366
https://www.instagram.com/legacy_home_team/

Royal LePage Parkwood Realty
1370 Johnson Ave
Bathurst, New Brunswick E2A 3T7

(506) 546-0660

Andrea Bouma-Legacy
Agent Manager

(506) 252-2067

Royal LePage Parkwood Realty
1370 Johnson Ave
Bathurst, New Brunswick E2A 3T7

(506) 546-0660

Your Favourites

 

No Favourites Found